
Craein Oscailte Leictreonach Aonair Leictreach Uathoibríoch Leictreach HD
Is éard atá i Crane Overhead Giorra Aonair Eorpach ná innealra dlúth tógála atá deartha agus déantúsaíochta i gcomhréir dhlúth le caighdeán FEM agus DIN, a bhfuil teicneolaíocht chun cinn agus dearadh álainn aige. Roinnte i gcineál ginearálta agus cineál fionraí, ag tacú le húsáid taistil leictreach caighdeánach Eorpach, atá oiriúnach do láimhseáil ábhar ceardlainne agus stórais, cóimeáil chruinneas mór áiteanna agus áiteanna eile.
Craein Oscailte Leictreonach Aonair Leictreach Uathoibríoch Leictreach HD
Cur síos gairid:
Is éard atá i Crane Overhead Giorra Aonair Eorpach ná innealra dlúth tógála atá deartha agus déantúsaíochta i gcomhréir dhlúth le caighdeán FEM agus DIN, a bhfuil teicneolaíocht chun cinn agus dearadh álainn aige. Roinnte i gcineál ginearálta agus cineál fionraí, ag tacú le húsáid taistil leictreach caighdeánach Eorpach, atá oiriúnach do láimhseáil ábhar ceardlainne agus stórais, cóimeáil chruinneas mór áiteanna agus áiteanna eile.

D'fhéadfaí é a úsáid go forleathan i gcásanna déantúsaíochta, miotalóireacht, peitriliam, peitriliam, calafoirt, iarnróid, eitlíochta sibhialta, bia, páipéar, tógáil, tionscail leictreonaice, stóras agus cásanna láimhseála ábhair eile, esp. chuir sé i bhfeidhm ar láimhsiú ábhair a bhfuil gá le suíomh beacht, comhpháirteanna móra staid chruinnithe cruinnithe.

Íomhánna Mionsonraithe:

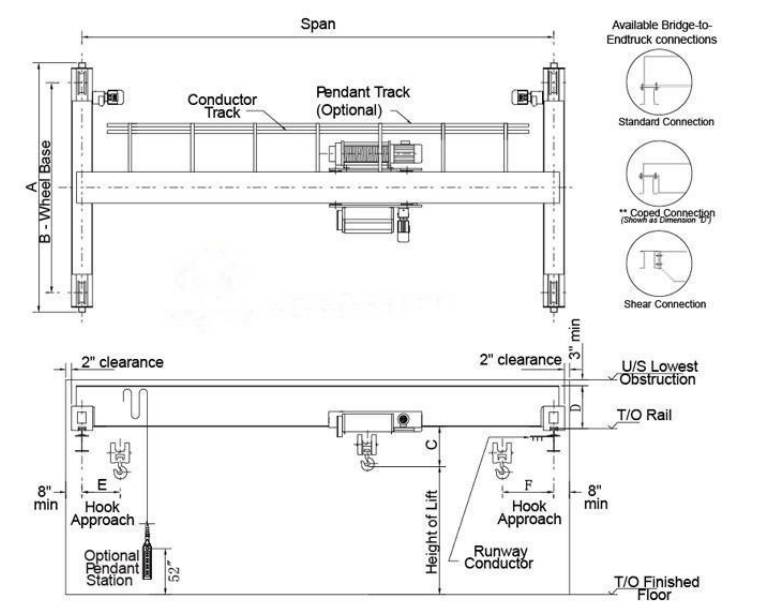
Líníocht Sceitse:

Paraiméadair theicniúla:
Span | m | 7.5 | 10.5 | 13.5 | 16.5 | 19.5 | 22.5 | 25.5 |
Cumas | t | 1 ~ 12.5t | ||||||
Meáchan iomlán | KG | 1781 ~ 12086 | ||||||
Meáchan tralaí | KG | 405 ~ 740 | ||||||
Max. Ualach rotha | kn | 13.5 ~ 90.94 | ||||||
Iarnróid taistil | P24 ~ P43 | |||||||
Luas ardú | m / min | 0.8 / 5 | 0.8 / 5 | 0.8 / 5 | 0.8 / 5 | 0.8 / 5 | 0.8 / 5 | 0.8 / 5 |
Ardú ardaithe | m | ≥ 6 | ≥ 6 | ≥ 6 | ≥ 6 | ≥ 6 | ≥ 6 | ≥ 6 |
Cumhacht mótair iomlán | kw | 4.31 | 4.31 | 4.31 | 4.31 | 4.67 | 4.67 | 4.67 |
Luas Crane | m / min | 3-30 | 3-30 | 3-30 | 3-30 | 3-30 | 3-30 | 3-30 |
Luas tralaí | m / min | 2-20 | 2-20 | 2-20 | 2-20 | 2-20 | 2-20 | 2-20 |
Dleacht oibre | M5 / A5 | |||||||


English
Svenska
Bai Miaowen
Español
Latviešu
Kreyòl Ayisyen
Deutsch
Việt Nam
Indonesia
slovenščina
türkiye
اردو





